The Harvard Housing Partnership completed its “Town of Harvard Affordable Housing Strategy” in December 2004. This document outlines a strategy which will allow the town to comply with the Massachusetts Department of Housing and Community Development’s Planned Production Regulations, which are designed to encourage towns to achieve a goal of 10% affordable housing. With only 2.5% of Harvard’s current housing stock currently considered affordable, the Housing Plan noted a shortfall of some 160-170 units to bring current housing stock up to the 10% level. Additional affordable units will be needed to balance ongoing increases in market rate housing. The town’s strategy calls for new, small-scale affordable developments distributed throughout the town, as well as actions to maintain the affordability of existing units. The use of lands already owned by the town, such as the Whitney Gravel Pit, is an important part of this strategy.
The Whitney Gravel Pit has been owned by the town for many years, and has been used off and on by the DPW as a source of gravel and fill materials, and as a place to dump stumps and other organic material, street sweepings, and asphalt. In 1990, the town hired the Cottonwood Company to prepare affordable housing site studies for two properties, including the Whitney Gravel Pit. That study recommended a total of 28 units in seven “farmhouse style” structures in the cleared portion of the site. Other than the cost of construction and the value of houses in Harvard, little has changed on the site since the Cottonwood report was prepared. This report builds on that earlier study and, in regard to the
earlier findings about the physical capabilities of the site, reinforces the original findings.
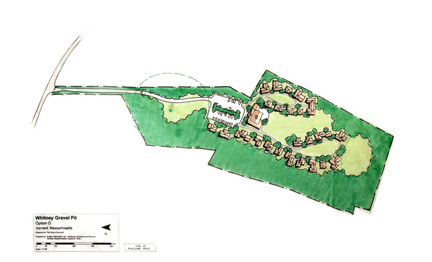
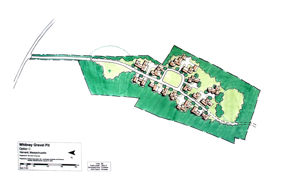
The Affordable Housing Plan recognized that volunteer town boards and the Harvard Housing Authority do not have the capacity to become housing developers. Therefore it is assumed that affordable housing project will be done as a “local initiative project” or “friendly 40-B” development, to be planned and built in partnership with private developers. The Housing Partnership identified the Whitney Gravel Pit as a potential site for such a partnership. In the early summer of 2005, the town hired Dodson & Flinker to prepare a feasibility study and conceptual design for the project. This report documents the results, which focus on a new village of 36 to 45 dwelling units in 14 structures. It concludes with recommendations for next steps, and provides cost estimates for survey, engineering and design work that will be needed to move forward with the project.











