HORSENECK BEACH STATE RESERVATION MASTERPLAN

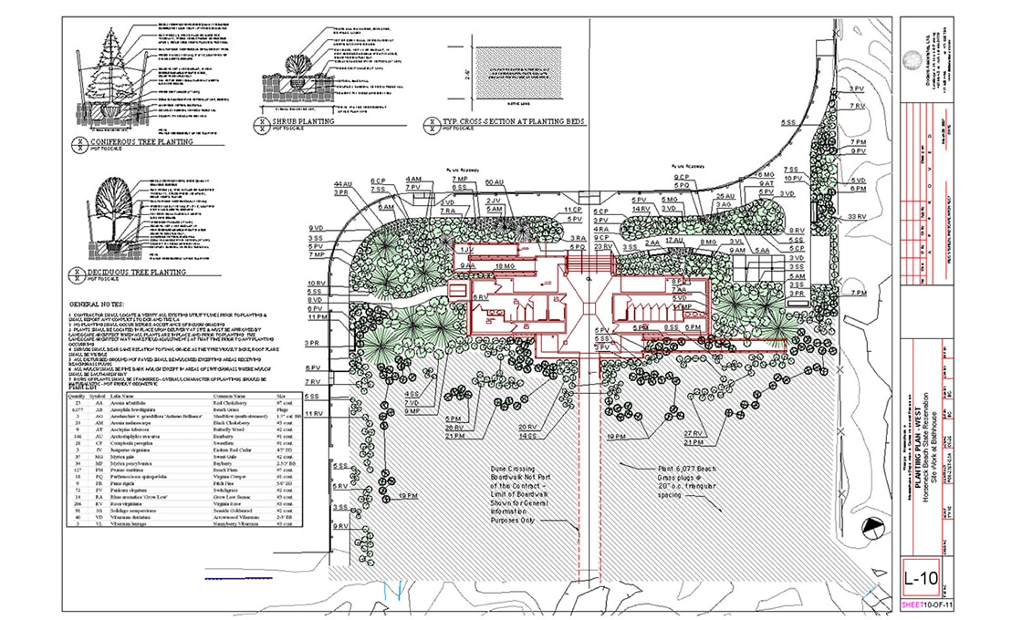
Dodson & Flinker executed the comprehensive renovation of park facilities and plantings at the second most popular beach in the Massachusetts Park System. The project includes a masterplan as well as construction documents for two new satellite bathhouses with composting sanitary facilities serving two parking lots of over 1,200 cars each. The proposed bathhouses were designed in a shingle style reminiscent of a 19th c. beach bathhouses, providing accesible access to new elevated, Ipe wood dune crossings. The dune crossings provide access to the beach while separating visitors from Piping Plover habitat and allowing the primary dunes to re-establish and shift beneath them. All plantings meet rigorous Conservation Commission and Coastal Zone Management requirements to both be tough enough to stabilize newly establishing dunes subject to heavy winter storms or hurricanes and to be native to this specific County in Massachusetts. The Bathhouses are currently under construction and Dodson & Flinker is now focusing on renovation of the central Beach Service Plaza with administrative, lifeguard, sanitary and concession facilities. These buildings are all being elevated to allow a storm surge to flow underneath. At full build-out of the Masterplan, impervious surface at the Central beach Services Plaza will have been reduced by over 50% and all buildings will have been relocated out of the Flood Velocity Zone.